Panduan Menghitung Volume
Pekerjaan Beton Bertulang
Pekerjaan
beton yang telah disetting dalam software rab yang volumenya harus dihitung
adalah sebagai berikut :
1. Sloof Beton Tulang 15/20 (180 kg besi + bekisting) 4dia. 12 ring 8-15
2. Kolom, 15/20 (180 kg besi + bekisting) 4dia.12 , ring 8 -15
3. Ring Balk, sofi-sofi (180 kg besi + bekisting) 4dia. 12mm, ring 8mm -15
4. Tangga Beton (90 kg besi + bekisting), dia 10 & 8 mm
5. Plat Lantai 10 cm ( 90 Kg Besi + Bekisting ) dia 8mm, 2x 15x15
1. Sloof Beton Tulang 15/20 (180 kg besi + bekisting) 4dia. 12 ring 8-15
2. Kolom, 15/20 (180 kg besi + bekisting) 4dia.12 , ring 8 -15
3. Ring Balk, sofi-sofi (180 kg besi + bekisting) 4dia. 12mm, ring 8mm -15
4. Tangga Beton (90 kg besi + bekisting), dia 10 & 8 mm
5. Plat Lantai 10 cm ( 90 Kg Besi + Bekisting ) dia 8mm, 2x 15x15
Mari kita bahas
satu per-satu cara menghitungnya. Gambar yang diperlukan adalah :
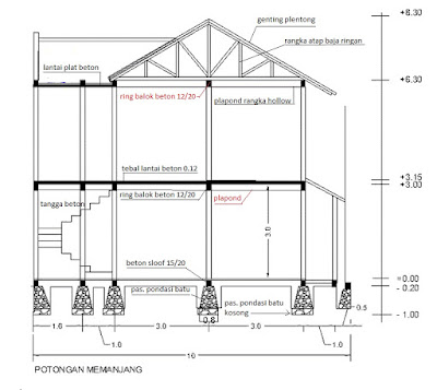
- Gambar Denah, gunanya untuk melihat ukuran panjang sloof dan jumlah titik kolom dan penampang kolom, serta ketebalan dan ukuran lantai beton.
- Gambar Potongan dan Detail Pondasi, untuk melihat ukuran tinggi kolom, penampang sloof, ring balk.
1.
Menghitung Volume Pekerjaan Sloof 15/20 Cm
Rumus :
Volume = Luas Penampang x Total Panjang Sloff
Luas
Penampang = 0.15 x 0.20 M' = 0.03 M2
Total
panjang =jumlah sisi memanjang dan melintang lantai 1 dan lantai 2. Jumlah
panjang sisi pasangan sloof lantai 1 dan 2 = 123 M'. Silahkan Anda cek lagi
dengan melihat gambar denah lantai 1 dan lantai 2.
Jadi volume
pasangan beton sloof = 123 x 0.03 = 3.69 M3 .
2.
Menghitung Volume Pekerjaan Kolom, 12/20 Cm
Rumus :
Volume = Luas Penampang x Total Tinggi kolom
Luas
Penampang = 0.12 x 0.20 M' = 0.024 M2
Total tinggi
kolom = jumlah titik kolom lantai 1 dan lantai 2 dikali tinggi kolom. Lihat
denah lantai 1 dan lantai 2.
Jumlah titik
kolom lantai 1 dan 2 = 35 titik. Silahkan Anda cek kembali
Tinggi kolom
= 3 M
Total tinggi
kolom = 35 x 3 M = 105 M
Jadi volume
pasangan beton kolom = 105 x 0.024 = 2.52 M3 .
3. Menghitung Volume Pekerjaan Ring Balk 12/20 Cm
Rumus :
Volume = Luas Penampang x Total Panjang Ring Balk
Luas
Penampang = 0.12 x 0.20 M' = 0.024 M2
Total
panjang ring bal = panjang sloof = 123 M
Jadi volume
pasangan ring balk = 123 x 0.024 = 2.952 M3 .
4. Menghitung Volume Pekerjaan Tangga Beton
Rumus:
Volume = luas tangga x tebal tangga
Tebal Tangga
= 10 CM
Luas tangga
= jumlah anak tangga x panjang x lebar anak tangga
Jumlah anak
tangga = 13 bh
lebar = 30
CM; dan panjang = 70 CM
Luas tangga
= 13 x 0.3 x 0.7 = 2.73 M2
Jadi volume
tangga beton = 2.73 x 0.1 = 0.273 M3
5. Menghitung Volume Pekerjaan Plat Lantai 2 (tebal 12 cm)
Rumus : Luas
lantai x tebal lantai beton
Tebal lantai
beton = 12 CM
Perhatikan
gambar denah lantai 2 dan gambar potongan
Plat lantai
2 = 8.5 x 6 = 51 M2
Plat atap
lantai 2 di atas tangga = 3 x 3 = 9 M2
Jumlah luas
plat lantai beton = 60 M2
Jadi volume
plat lantai beton = 60 x 0.12 = 7.2 M3



Tidak ada komentar:
Posting Komentar